Aspira One Sutthisan

2019

Bangkok

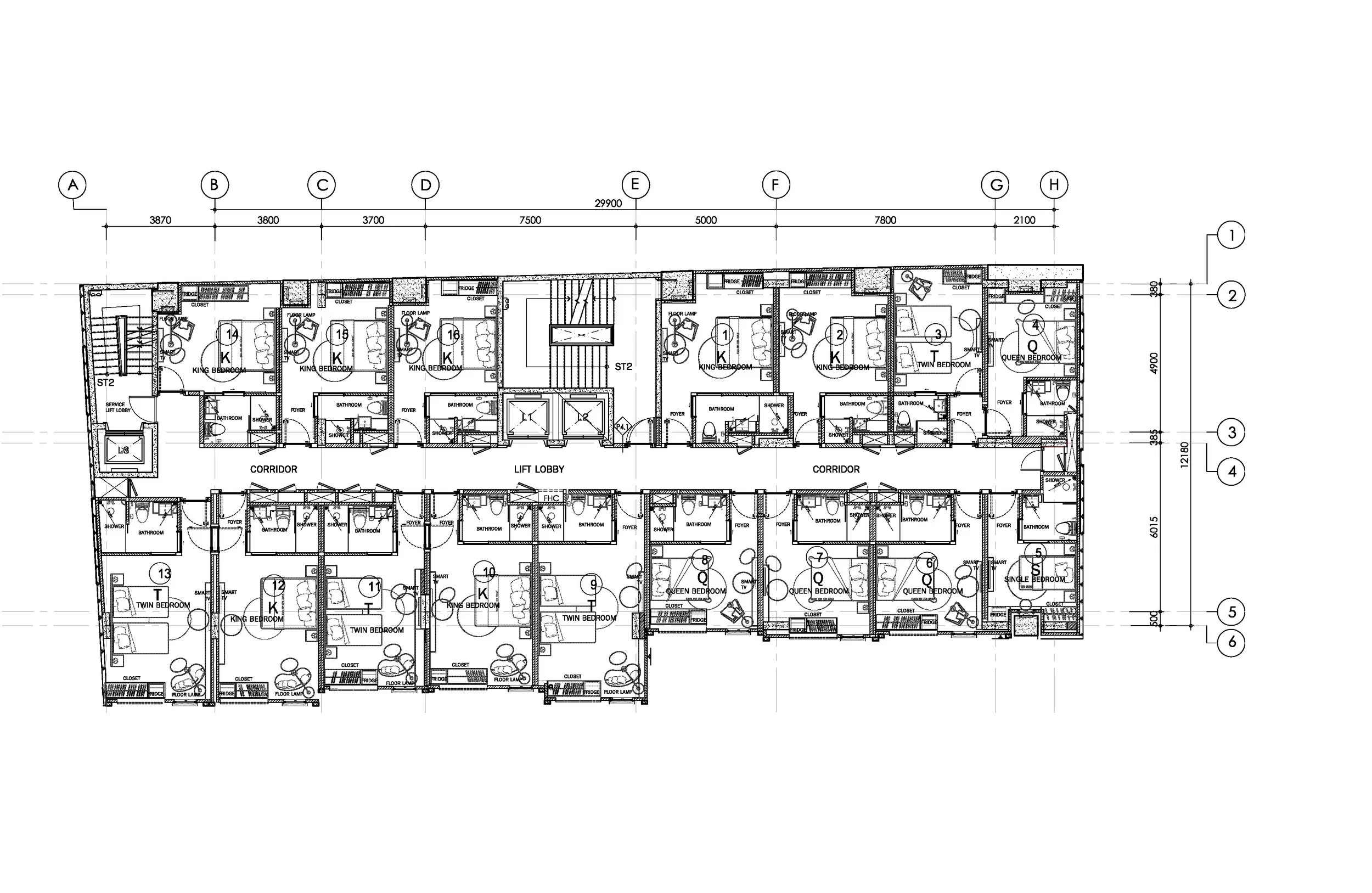
New 80 room mid-range city hotel connecting a town house facing the main road to the main hotel block at the rear of the site. Durable finishes and uncomplicated interiors contrasted with a statement facade inspired by stacking containers.